W-EW639: Ruhig.Grün.Aussichtsreich!!!
47.300 EUR Kaufpreiserwartung Osternienburger Land | 3-RWE - Eigentumswohnungen | ca. 68m² | 3 ZimmerBeschreibung
Diese 3-Raum-Wohnung im Hochparterre befindet sich im Osternienburger Land und eignet sich ideal für Singles, Paare und Familien. Dank einer durchdachten Aufteilung, wird Ihnen eine solide Basis für Ihr individuelles Wohnen und Gestalten geboten. Das Badezimmer ist mit einer Badewanne und einer separaten Dusche ausgestattet, sowie einer Fußboden- und Handtuchheizung.
Zusätzlichen Stauraum bietet Ihnen ein eigenes Dachbodenabteil und zwei Kellerräume, sowie mehrere Gemeinschaftsräume. Auch eine Garage hinter dem Haus gehört zu diesem Angebot dazu.
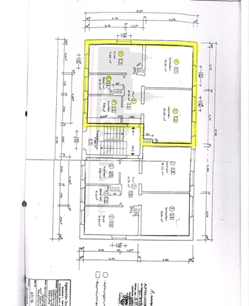
Aufteilung:
| EG | : | Wohnzimmer, Küche, Schlafzimmer, Kinderzimmer, Bad , Flur |
| KG | : | 2 Kellerräume, mehrere Gemeinschaftsräume |
Objektbeschreibung:
| Fenster | : | Kunststoffthermofenster |
| Türen | : | Holzfurniertüren |
| Fußböden | : | Fliesen, PVC-Belag, Estrich |
| Heizung | Gaszentralheizung mit WW-Aufbereitung (1996) | |
| Sanitär | : | – Tageslichtbad mit Dusche und Wanne (1996) |
| Elektrik | : | einfacher Standard (1996) |
| Stellplatz | : | Garage, Anliegerstraße |
| Mietpreiserwartung | : | 4.788,00 EUR p.a. (ETW + Garage) |
| Hausgeld pro Monat | : | 118,00 EUR |
| Sonstiges | : | – Garage auf Pachtgrundstück (50€ p.a.) |
| – Fußboden und Handtuchheizung im Bad | ||
| – Wandheizung Schlafzimmer Außenwand |
Details
| Angebots-ID: | W-EW639 |
| Verfügbar ab: | sofort |
| Kaufpreis: | 47.300 EUR |
| Nebenkosten: | Hausgeld pro Monat: 118,00 EUR |
| Heizkosten: | Direktabrechnung |
| Jährl. Mieteinnahmen (Soll): | 4.788,00 EUR |
| Provision für Käufer: | 3,57 % inkl. MwSt. vom Kaufpreis, jedoch mind. 2142,00 EUR inkl. MwSt. |
| Zimmer: | 3 |
| Schlafzimmer: | 1 |
| Badezimmer: | 1 |
| Kellerräume: | 1 |
| Wohnfläche: | ca. 68 m² |
| Etage: | EG |
| Baujahr: | ca. 1958 |
| Letzte Renovierung: | 1996 |
| Ausstattungskategorie: | 3-Raum-Eigentumswohnung |
| Heizungsart: | Gaszentralheizung |
| Befeuerungsart: | Erdgas |
| Wert des Endenergiebedarfs (Heizung): | 160,46 kWh/(m²·a) |
| Art des Energieausweises: | Verbrauchsausweis |
| Energieeffizienzklasse: | F |
Merkmale
GarageKellerWaschkücheFahrradkellerDachbodenAbstellraumKabel/Sat-TVDSL/InternetTiefgarage
Adresse
06386, Osternienburg
















